桂林廉政教育基地,室內布展面積1443㎡(一樓展廳面積494㎡;二樓展廳面積433㎡;三樓展廳面積428㎡);桂林市廉政教育基地將成為桂林市黨員干部黨風教育基地、黨史學習中心,及面向大眾的愛國主義教育基地.
桂林市廉政教育基地的四個維度(展館主線)
歷史深度——文化自信
全球廣度——制度自信
時代高度——道路自信
桂林角度——城市自信
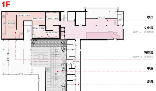
序廳
序廳是整館的名片,亦是觀眾對展館的第一印象。
設計利用空間兩個立柱,書寫對聯“丹桂抒廉意、儒林傳清風”為展示開場。頂部以LED彩幕展開一副淡雅清新的水墨畫,與館名墻前開滿蓮花的清秀水景相互呼應,營造出一種清雅、正氣的展廳氛圍。主題墻上連綿起伏、若隱若現的桂林山峰,在水池中形成倒映影像,以“山清水正”寓意“風清氣正”,彰顯出桂林以及桂林人性格中的”清正、直率、堅韌、自信“。
詩意廉鄉&廉韻悠長
“一方水土,養育一方人”,自古以來,桂林水的清、山的正成為人們廉潔正直的精神家園和靈魂寄托。我們在漫長的歷史長河中,采擷各個歷史時期的閃光人物,以他們的詩文描繪出一派詩意廉鄉的風采;我們選取顏延之、戎昱、陳繼昌、吳邁等歷朝歷代名臣、廉吏的詩文以及實物著作等,傳達出桂林一脈相承的廉潔文化。
廉潔印記
自古以來,桂林水的清、山的正成為人們廉潔正直的精神家園和靈魂寄托。接下來的廉潔印記展區,我們利用浮雕、影片等手段,將“靈渠”、“百年清官村”等桂林廉潔文化地標梳理成一個個清晰的廉潔印記,標注在觀眾的眼中、心中。
群星璀璨·千秋稱頌——步步生蓮&廉潔大道
桂林的清風廉韻孕育出一大批璀璨的廉潔名人,千秋萬世為世人稱頌。包拯“前世”—周謂、理學鼻祖—周敦頤、愛憎分明—梅摯、寵辱不驚—張孝祥……等人物或生長在這里、或曾停留在這里,但依然將自己的清廉人生書寫在這片土地上,匯聚成一條清廉為政的光明大道,指引著后人的方向。
當觀眾徐徐走過雕塑長廊,動感地投裝置將在觀眾腳下綻放出一朵朵盛開的蓮花,象征著清廉人生的光榮。
時代強音
正氣、豐富的展區內,通過圖文詳細展現出“八項規定“、糾正”四種作風”、推進“三嚴三實”、”群眾路線“、”兩個責任“、、“忠誠是第一位的要求”……等思想的結晶,它們不僅是制度建設的新發展,亦是堅守信仰,推進依法治國的時代最強音!
警鐘長鳴-感應式藝術裝置
展區中央,一個斜扣的巨型銅鐘不時發出沉重的鳴響。當觀眾走近鐘的內部,會看到投影營造的“風暴眼“將許許多多貪官的名字卷入風暴的中心,直至消失。藝術化的表現手段,帶給觀眾強烈的內心震撼。
創意展項-“不要邁出第一步”
四周墻面上,觀眾將看到“猛藥去疴、重典治亂”的決心下、在“老虎蒼蠅一起打”的戰略指引下、貪官污吏無所遁形,他們身敗名裂的結局已不可重來。觀眾在警醒之余,內心受到巨大的觸動,進而產生“不敢腐”的強烈震懾作用。對于腐敗案例教育點的深度挖掘,不僅起到良好的教育作用,也讓案件真正成為政策的發聲筒。
照鏡正身-情感體驗空間
繞過一面墻,觀眾來到一個三面圍合式的空間內,兩側墻面展出貪腐贓物,而正面墻面則寫滿倒置的文字,當觀眾轉身,即看到身后是一面頂天立地的鏡子,在鏡子中,文字變成正面,觀眾看到自己,也辨認出文字內容—“為政之道、腐亡廉興”、“心有所畏、行有所止”、“為民、務實、清廉”等。獨特的創意展區,用一種無聲的方式,傳遞著深刻的涵義。
人生是否能重來-劇場化演繹體驗空間
繼續向前,觀眾來到一個圍合式的展區。一個巨大的生命時鐘懸掛在頂部,刻度代表著一個人的一生。隨著指針的走動,墻面的投影將展現出一名黨員的腐化墮落史——“少年入隊“—”青年入黨“—”中年得到提拔“—”逐漸腐化墮落“—”走向身敗名裂“,當時針走到最后一個階段,頂部的投影在地面上打出一行大字:”人生是否能重來?“,隨之表針開始逆時針轉動,觀眾在投影畫面上看到腐化官員一步步回到從前,直至回到一位面對國旗行少先隊禮的少年臉上。劇場化演繹的方式,提醒觀眾一個現實的答案: ”電影可以倒帶,但人生卻不能重來!“
貪廉一念間、榮辱兩世界—心理置換對比空間
案例區的盡頭,在算好人生七筆賬對面,觀眾將看到一面鐵籠,抽象的城市窗口漸次亮起,通過巧妙地心理置換,鮮明而強烈地告誡人們,一念之間的貪腐不僅危害國家、也會對人生造成難以彌補的傷害。

國內設計的展陳設計借鑒參考比較普遍,很多設計造型用了一次又一次,樂此不疲。今天小編找了找近年來展廳設計里被借鑒的比較多的十大造型。僅供初學者參考娛樂。不足之處請多指教哈哈!歡迎補充。

在中華文明的長河中,酒文化是串聯歷史、藝術與生活的紐帶。如何將這份厚重的文化積淀轉化為可感知、可體驗的空間?我們以“沉浸式文化傳承”為核心,推出酒文化主題館設計方案,通過現代設計語言與科技手段,構建一座跨越時空的酒文化主題空間,讓每一個造型都傳遞酒韻文化的內涵。

瑞士館的展覽設計概念植根于清晰、結構和精致簡約——這些核心價值反映了瑞士的國家身份,在緊湊的 90平方米空間內進行設計,該空間不僅僅是一個展覽攤位:它是一個精心策劃的體驗,將品牌影響力與建筑優雅融為一體,在瑞士國家館的設計方面樹立了高標準。

儒學,即儒家思想,是先秦諸子百家學說之一。在中國文明史經歷了夏、商、周,近1700年之后,春秋末期思想家孔子所創立經后世的尊崇、傳承形成了完整的思想體系成為我國影響最大的流派,也是我國古代傳統文化的主流。儒家學派對中國,東亞乃至全世界都產生過深遠的影響。儒家思想在科技發達的今天仍然具有非常重要的現實意義和價值。

時間之流浸潤并模糊了榖物的原相,形色香在壓力變化中揉雜溫度、空氣和水滴釀出甘醇風味。

水是生命之源,萬物之基。黨的”十八大”突出了生態文明建設的地位,水生態文明是生態文明的重要組成部分和基礎保障。

博物館,你是否曾被一件文物擊中內心?是否曾在某個展柜前久久駐足?那些無聲的物件,穿越時光與我們對話,其背后正是精心設計的展示藝術在默默牽引著我們的視線與心靈。展示設計絕非簡單的“擺放”與“陳列”,它是一場無聲的導演藝術,關乎如何讓文物“開口說話”。

在當今城市發展的脈絡中,社區服務中心(或稱鄰里中心、新時代文明實踐站等)已悄然成為居民生活的核心錨點。它超越了傳統行政場所的范疇,日益演變為集政務服務、鄰里交往、文化展示、精神培育于一體的綜合性樞紐。是政策落地、服務延伸的窗口,更是凝聚社區情感、展現時代風貌、傳遞文明理念的生動載體。

九江,這座鑲嵌在長江之畔的璀璨明珠,自古以來便以其獨特的地理位置和豐富的歷史文化而著稱。然而,在1998年的那個夏天,九江卻經歷了一場前所未有的考驗——特大洪水。這場洪水不僅考驗了九江人民的勇氣和智慧,更孕育出了一種偉大的精神——抗洪精神。為了銘記這段歷史,傳承這種精神,九江九八抗洪展陳館應運而生。